超15W本书籍逐步发布中,敬请期待!

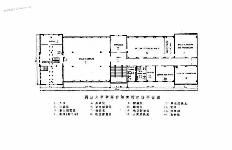
老图书–《震旦大学之新图书馆》电子版合集

历史 admin 13次浏览

文件下载

 名称:《震旦大学之新图书馆》电子版合集
 关键词:震旦大学,图书馆,民国时期,
 出版地区:nan --  文件大小:1.30 MB
 原始格式:db数据库  导出格式:png
 下载方式:百度网盘、夸克网盘、阿里云盘、123云盘
 网盘路径:/时光图书馆珍藏系列/书籍文件/老图书/《震旦大学之新图书馆》电子版合集.db
 提示:也支持在线观看,安装阅读器即可,无需额外下载书籍文件。
下载地址:   ★阅读器★   百度网盘   阿里云盘   123云盘   夸克网盘

内容截图:(图片有压缩,使用阅读器观看更清晰)


书籍获取:书籍合集

喜欢 (0)